Information

Apartment, Two-bedroom (3+1)

Benefiting from a shared terrace and garden, this refurbished, unfurnished apartment, designed by an architect, is situated on the ground floor of a residential building situated in a prestigious residential neighborhood of Bubeneč. A quiet and green location within walking distance of Stromovka Park, with very quick connections to the city center just minutes from the Dejvická and Hradčanská metro stations and tram stops. Full amenities and services are close-by, conveniently located for Prague 6 international schools and the airport.

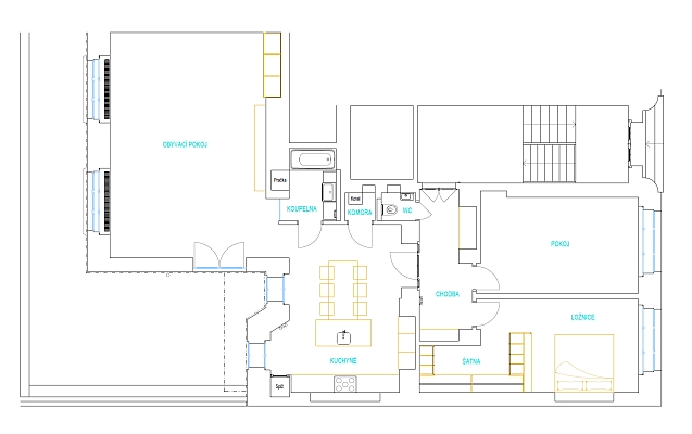
The interior features a spacious living room with a large built-in wardrobe and access to a shared terrace and garden, a fully fitted kitchen with a dining area, a master bedroom with a fitted walk-in closet, a second bedroom, a bathroom including a bathtub, a separate toilet, a utility room, and an entrance hall with a built-in wardrobe and storage. 

Hardwood oak floors, screed floors, casement windows, security entry door, interior roller blinds, gas boiler, underfloor heating in the bathroom, toilet, and entrance hall, dishwasher, microwave oven, cooktop, refrigerator, good window insulation, bars on bedroom windows, alarm, spacious cellar

Facilities

  • Cellar

Floor plan

  • Floor plan 1

Overview table

  • Reference number
    103293
  • Monthly rent
    Rented
  • Building services
    Monthly deposit for service charges and water: CZK 3,000. Electricity and gas are billed separately.
  • Floor area *
    123 m²
  • Total area
    123 m²
  • Parking
    -
  • Cellar
    Yes
  • Building Energy Rating
    G
* Size of the unit according to the Housing Act. The area consists of the sum total of the internal area of every room.

Location

Property surroundings

Contact us

optional
optional

Browse other apartments in the area

Get the latest offers directly in your inbox

Location
Parameters
Size
Min
Max.
Price range
Price min.
Price max.
Price range
Price min.
Price max.