Information

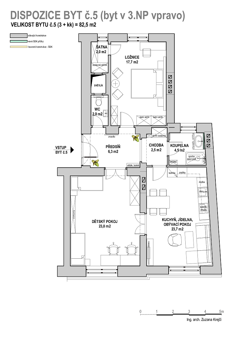
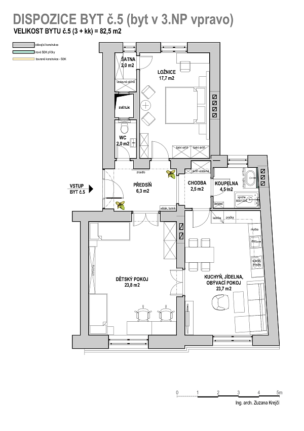
Apartment, One-bedroom (2+1)

This fully refurbished unfurnished 1-bedroom apartment on the second floor of a newly renovated residential building with numerous charming preserved original architectural details and no elevator is located in a residential neighborhood in Nusle near the Botič stream, mere steps from Náměstí Bratří Synků Square with tram stops and full amenities within easy reach. Conveniently located for the Arkády Pankrác shopping center, Pankrác business center, Jezerka Park, and Divadlo Na Fidlovačce Theater, just a short drive to the city center.

The interior features a living room, a spacious fully fitted kitchen with a dining area, a bedroom with a small walk-in closet, a bathroom with a walk-in shower, a separate toilet, and an entrance hall. 

Air-conditioning, renovated features, hardwood parquet floors, tiles, double interior doors, central heating, new kitchen and bathroom, dishwasher, microwave oven, cellar. An outdoor parking space is available at an additional fee. 

Facilities

  • Parking
  • Cellar

Overview table

  • Reference number
    111322
  • Monthly rent
    € 1 650 / CZK 40 000
  • Building services
    Monthly deposit for services, water, and heating: CZK 6,498. Electricity is billed separately.
  • Floor area *
    82 m²
  • Total area
    82 m²
  • Parking
    Parking is available
  • Cellar
    Yes
  • Building Energy Rating
    D
  • Available from
    Immediately
* Size of the unit according to the Housing Act. The area consists of the sum total of the internal area of every room.

Location

Property surroundings

Contact us

optional
optional

Browse other apartments in the area

Get the latest offers directly in your inbox

Location
Parameters
Size
Min
Max.
Price range
Price min.
Price max.
Price range
Price min.
Price max.