-
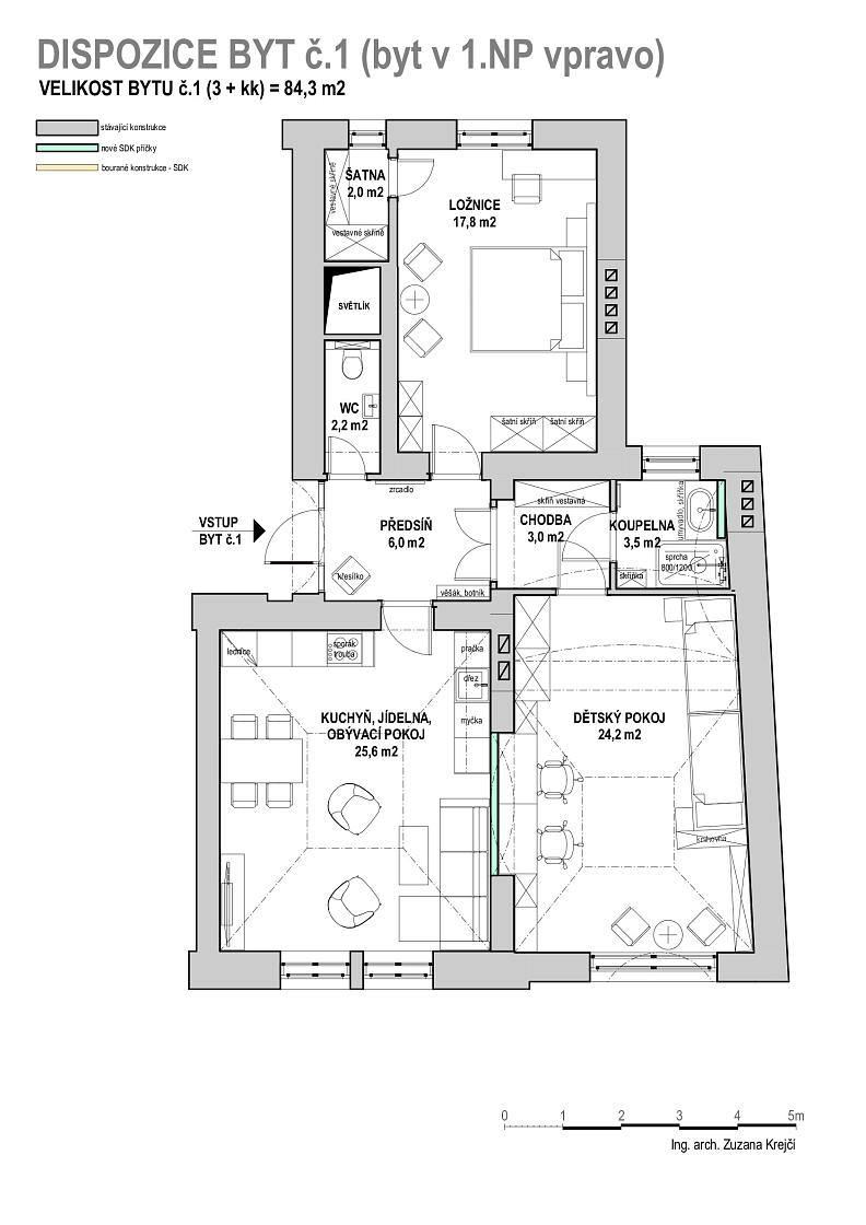
Apartment Two-bedroom (3+kk)
-
Prague 4, Nusle, Na Ostrůvku
- Floor area
- 84 m²
This fully refurbished unfurnished 2-bedroom apartment on the upper ground floor of a newly renovated residential building with numerous charming preserved original architectural details and no elevator is located in a residential neighborhood in Nusle near the Botič stream, just steps from Náměstí Bratří Synků Square with tram stops and full amenities within easy reach. Conveniently located for the Arkády Pankrác shopping center, Pankrác business center, Jezerka Park, and Divadlo Na Fidlovačce Theater, just a short drive to the city center.
The interior features a living room with a fully fitted open plan kitchen and dining area, a bedroom with a small walk-in closet, a second bedroom, a bathroom with a walk-in shower, a separate toilet, and an entrance hall.
Air-conditioning, renovated features, hardwood parquet floors, tiles, double interior doors, central heating, new kitchen and bathroom, dishwasher, microwave oven, cellar. An outdoor parking space is available at an additional fee.
Please contact us any time if you have any questions and our team will get back to you.