Information

Apartment, Two-bedroom (3+1)

Boasting an exclusive location, this is a fully refurbished, sunny 1,5-bedroom 2-bathroom apartment with a 60 m2 terrace providing lovely views of Prague, on the 3rd floor of a renovated Functionalist villa surrounded by a large garden with a barbeque. Situated in a quiet street in the prestigious Hanspaulka residential neighborhood, near the lovely Horní Šárka forest park. The location is comfortably accessible by public transportation, with quick access to the city center, the airport and international schools, a few min. drive to Bořislavka and Dejvická metro stations, with full amenities in the area.

This air-conditioned apartment offers a master bedroom with an en-suite marble bathroom with a bathtub, a small room which can be used as a study, a shower room, a living room, and fully fitted eat-in kitchen with a marble counter top and access to the terrace.

Solid wood parquet floors, tiles, built-in wardrobes, alarm, satellite TV connection. Deposit for utilities: approx. CZK 5000/month.

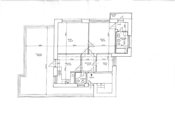
Floor plan

  • Floor plan 1

Overview table

  • Reference number
    13053
  • Monthly rent
    Rented
  • Floor area *
    75 m²
  • Terrace
    60 m²
  • Total area
    135 m²
  • Parking
    -
  • Cellar
    -
  • Building Energy Rating
    G
* Area of the unit according to the Civil Code. The area consists of the sum total area of the entire unit bounded by perimeter walls.

Location

Property surroundings

Contact us

optional
optional

Browse other apartments in the area

Get the latest offers directly in your inbox

Location
Parameters
Size
Min
Max.
Price range
Price min.
Price max.
Price range
Price min.
Price max.