Information

Apartment, Three-bedroom (4+kk)

Benefiting from an 18 m2 terrace and beautiful views of the surrounding green residential area, this is a brand new 3-bedroom 2-bathroom flat. Situated on the first floor of a new residential development with underground parking, on-site gym and security. Located in a quiet green neighborhood next to Waltrovka project, with quick access to the French and German international schools, and the Anděl business district. Very good access to the city center, closest metro stations Radlická and Jinonice.

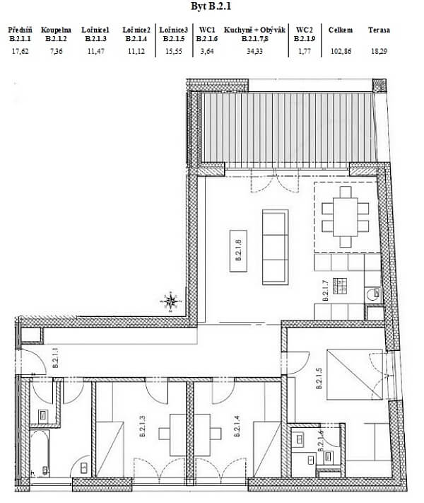
The interior features a spacious living room with a fully fitted open kitchen and dining area, three separate bedrooms, two bathrooms, guest toilet, and entry hall with built-in wardrobes. The terrace is accessible from the living room.

Wooden floors, tiles, heated floor in the bathrooms, security entry door, large format and French windows, outdoor blinds, dishwasher, microwave oven, video entry phone, chip entry to the building. Can be furnished with basic furniture at a higher rent. Garage parking available at CZK 1100/space/month. Common building charges and utilities CZK 4720/month. Cleaning service can be provided at an additional fee. Flat 103 m2, terrace 18 m2.

Facilities

  • Garage

Floor plan

  • Floor plan 1

Overview table

  • Reference number
    22288
  • Monthly rent
    Rented
  • Floor area *
    103 m²
  • Terrace
    18 m²
  • Total area
    121 m²
  • Parking
    Garage parking.
  • Cellar
    -
  • Building Energy Rating
    G
* Area of the unit according to the Civil Code. The area consists of the sum total area of the entire unit bounded by perimeter walls.

Location

Property surroundings

Contact us

optional
optional

Browse other apartments in the area

Get the latest offers directly in your inbox

Location
Parameters
Size
Min
Max.
Price range
Price min.
Price max.
Price range
Price min.
Price max.