Information

Apartment, Studio (1+1)

Fully furnished reconstructed 1-bedroom flat with a balcony, on the 3rd floor of a renovated 1927 building with lift, preserved original details and a shared back garden, right on the Vltava riverbank. Location with very quick access to the city center, just a short walk from the Nový Smíchov shopping mall and Anděl metro station, trams and buses.

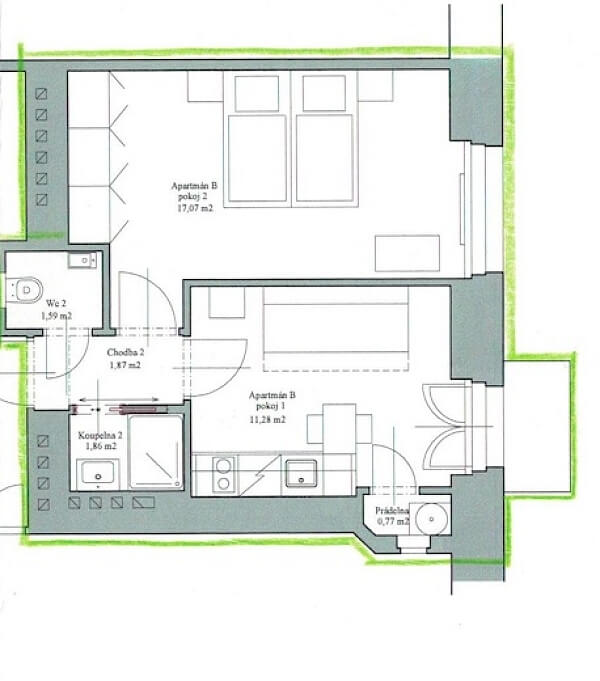
The interior features a spacious bedroom with built-in wardrobes, a fully fitted kitchen with living area and balcony facing the quiet courtyard, shower bathroom, a separate toilet, laundry room, and entry hall.

High ceilings, large windows, solid wood parquet and vinyl floors, tiles, security entry door, washing machine, basic kitchenware. Common building charges and utilities incl. the Internet CZK 3500.

Floor plan

  • Floor plan 1

Overview table

  • Reference number
    27212
  • Monthly rent
    Rented
  • Floor area *
    40 m²
  • Balcony
    2 m²
  • Total area
    42 m²
  • Parking
    -
  • Cellar
    -
  • Building Energy Rating
    G
* Area of the unit according to the Civil Code. The area consists of the sum total area of the entire unit bounded by perimeter walls.

Location

Property surroundings

Contact us

optional
optional

Browse other apartments in the area

Get the latest offers directly in your inbox

Location
Parameters
Size
Min
Max.
Price range
Price min.
Price max.
Price range
Price min.
Price max.