-
Apartment One-bedroom (2+kk)
-
Prague 2, Nové Město, Podskalská
- Floor area
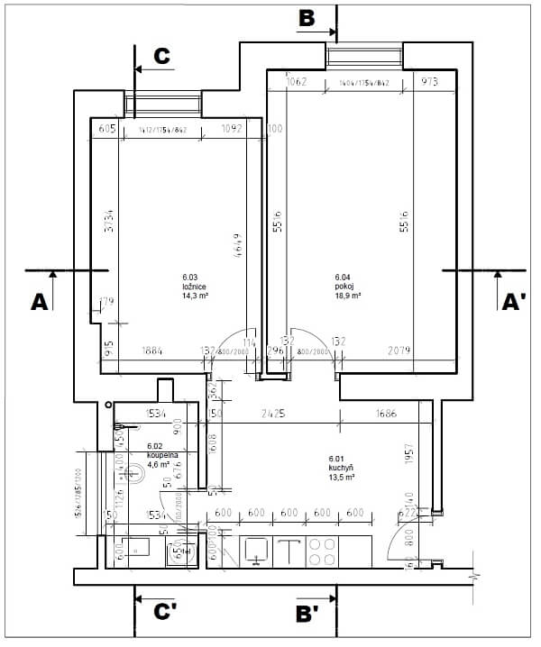
- 50 m²
One-bedroom attic apartment on the fifth top floor of a completely renovated traditional building with a lift and lots of preserved original details. Centrally located in a quiet residential neighborhood a minute walk from the Vltava river and Emauzy Monastery, just two minutes from the Karlovo (Palackého) náměstí metro station and tram links. Full amenities in close vicinity.
The interior features two separated rooms usable as a living room and a bedroom or two bedrooms (both facing the courtyard), a fully fitted and equipped kitchen in the entrance hall, and bathroom with a walk-in shower and toilet.
High vaulted ceilings, wooden floors, linoleum, tiles, built-in wardrobes, gas boiler, washing machine, dishwasher, video entry phone. Service charges CZK 700/person/month. Electricity and gas will be transferred to the tenant.
Please contact us any time if you have any questions and our team will get back to you.