-
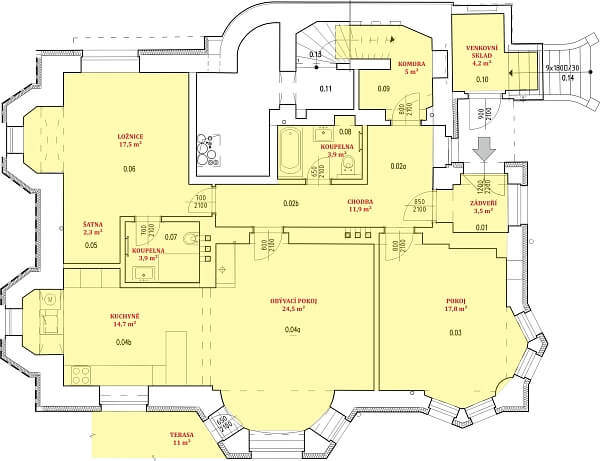
Apartment Two-bedroom (3+kk)
-
Prague 6, Střešovice, Buštěhradská
- Floor area
- 105 m²
- Terrace
- 11 m²
- Garden
- 104 m²

































