Information

Apartment, One-bedroom (2+kk)

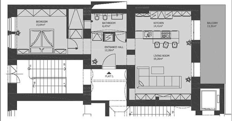
Fully furnished architect designed 1-bedroom flat featuring a 13 m2 terrace, on the upper ground floor in a reconstructed classic building with a lift. Located in a quiet part of Prague 3, a five minute walk to the city center, within quick reach of the Vítkov and Parukářka parks.

With quality materials and finishes, the flat features a fully fitted open plan kitchen with integrated Miele appliances and lots of cupboard space, living room with a courtyard facing terrace, shower bathroom with toilet and bidet, and an open entry hall with built-in wardrobes.

Design furniture, wood floors, heated tiles in bathroom, French windows, high ceilings, large built-in wardrobes in bedroom, breakfast bar, recessed lighting, washer, dryer, satellite and Internet connection, alarm. Design by Donlic studio. Common building charges and utilities are paid separately.

Interior 68m2, Terrace 13m2.

Floor plan

  • Floor plan 1

Overview table

  • Reference number
    3249
  • Monthly rent
    Rented
  • Floor area *
    68 m²
  • Terrace
    13 m²
  • Total area
    81 m²
  • Parking
    -
  • Cellar
    -
  • Building Energy Rating
    G
* Area of the unit according to the Civil Code. The area consists of the sum total area of the entire unit bounded by perimeter walls.

Location

Property surroundings

Contact us

optional
optional

Browse other apartments in the area

Get the latest offers directly in your inbox

Location
Parameters
Size
Min
Max.
Price range
Price min.
Price max.
Price range
Price min.
Price max.