Information

Apartment, Two-bedroom (3+kk)

Benefiting from a 66 m2 terrace and beautiful far reaching views, this is a 2-bedroom flat on the 4th top floor of a modern apartment building with a lift and underground parking. Situated just a short walk from the Metropole Zličín shopping center and Zličín metro station, line B, with quick access to the city center, moments from the Prague Ring Road and a short drive from the Václav Havel Airport. There are several children's playgrounds, a park and a popular bike trail nearby.

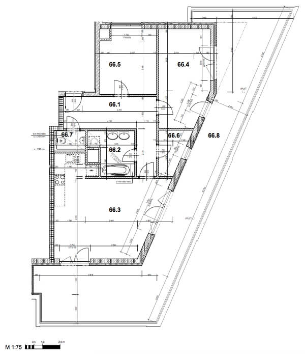
The interior features a living room with a fully fitted open plan kitchen and a dining area, a master bedroom, an office (or second bedroom), a bathroom incl. a bathtub with a shower screen, a separate toilet with a bidet shower, a walk-in closet / storage room, and an entrance hall. The wraparound terrace is accessible from the living room and master bedroom.

Quality vinyl floors, large format tiles, underfloor heating, security entry door, light dimmers and colour changing lighting, blinds, top quality Whirlpool kitchen appliances, induction cooktop, dishwasher, vacuum cleaner, garden furniture, automatic awning with sun and shade control on the terrace, 65“ OLED TV, Jablotron home security system, cellar, pram storage and chip entry in the building. An on-site underground single garage is available at CZK 4 000 monthly. Service charges, water and heating bills: CZK 3545/month for 2 persons. Deposit for electricity: CZK 800/month for 2 persons.

Facilities

  • Cellar
  • Garage

Floor plan

  • Floor plan 1

Overview table

  • Reference number
    33168
  • Monthly rent
    Rented
  • Floor area *
    86 m²
  • Terrace
    66 m²
  • Total area
    152 m²
  • Parking
    Garage.
  • Cellar
    Yes
  • Building Energy Rating
    G
* Area of the unit according to the Civil Code. The area consists of the sum total area of the entire unit bounded by perimeter walls.

Location

Property surroundings

Contact us

optional
optional

Browse other apartments in the area

Get the latest offers directly in your inbox

Location
Parameters
Size
Min
Max.
Price range
Price min.
Price max.
Price range
Price min.
Price max.