Information

Apartment, One-bedroom (2+kk)

This is a completely refurbished bright 1-bedroom apartment on the first floor of a well kept residential building with a lift and a shared gated garden available for residents. Situated in close vicinity of the Podviní park and the Gong theater, within easy reach of the Harfa shopping mall and the O2 Arena multipurpose venture. Located near the Českomoravská metro station, line B, with quick access to the city center by trams.

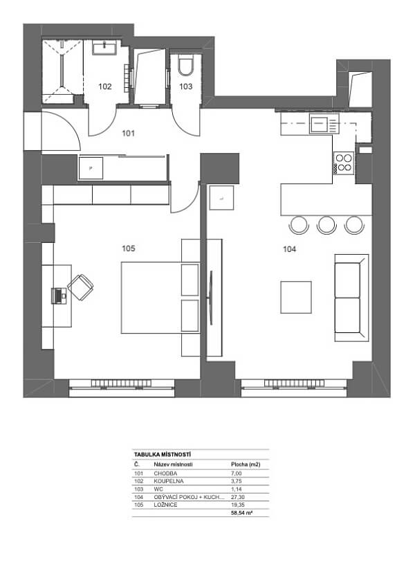
The apartment includes a living room with a fully fitted open plan kitchen and a dining area, a bedroom with built-in wardrobes, a shower room, a separate toilet, and a spacious entrance hall with built-in wardrobes. Both main rooms offer nice green views of the quiet gated courtyard with seating and a campfire ring.

New hardwood floors and triple glazed windows, ample storage, central gas heating, washer / dryer, dishwasher, wine fridge, cellar. Monthly deposit for service charges, heating and water: CZK 2500/month. Elekctricity is paid separately.

Facilities

  • Cellar

Floor plan

  • Floor plan 1

Overview table

  • Reference number
    40448
  • Monthly rent
    Rented
  • Floor area *
    59 m²
  • Total area
    59 m²
  • Parking
    -
  • Cellar
    Yes
  • Building Energy Rating
    G
* Area of the unit according to the Civil Code. The area consists of the sum total area of the entire unit bounded by perimeter walls.

Location

Property surroundings

Contact us

optional
optional

Browse other apartments in the area

Get the latest offers directly in your inbox

Location
Parameters
Size
Min
Max.
Price range
Price min.
Price max.
Price range
Price min.
Price max.