Information

Apartment, Three-bedroom (4+kk)

This refurbished 3-bedroom apartment is on the 1st floor of an Art Nouveau terraced building with preserved original details. Conveniently located in a highly sought-after residential part of Vinohrady, on a quiet street just a few blocks from lively Vinohradská Street, and minutes from the I.P. Pavlova and Náměstí Míru metro stations. The National Museum and Wenceslas Square with the Muzeum metro station are also close-by. Complete amenities are available within easy reach as is the popular Riegrovy Sady Park.

The interior features a living room with a fully fitted open plan kitchen, three bedrooms, a bathroom (walk-in shower, toilet, bidet shower), a utility room, a separate toilet, and an entrance hall.

Original hardwood parquet floors, tiles, new windows, original interior doors, wardrobes, gas boiler, washing machine, dryer, dishwasher, induction cooktop, microwave oven. 

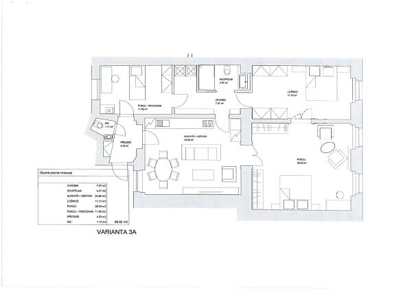
Floor plan

  • Floor plan 1

Overview table

  • Reference number
    43370
  • Monthly rent
    Rented
  • Building services
    Monthly deposit for services and water CZK 2,000. Electricity and gas are billed separately (transferred to the tenant).
  • Floor area *
    100 m²
  • Total area
    100 m²
  • Parking
    -
  • Cellar
    -
  • Building Energy Rating
    Not required
* Area of the unit according to the Civil Code. The area consists of the sum total area of the entire unit bounded by perimeter walls.

Location

Property surroundings

Contact us

optional
optional

Browse other apartments in the area

Get the latest offers directly in your inbox

Location
Parameters
Size
Min
Max.
Price range
Price min.
Price max.
Price range
Price min.
Price max.