Information

House, Three-bedroom (4+kk)

Three storey 3-bedroom 2-bathroom row house in a newly built residential project Na Hvězdárně, just 10 km from the center of Prague. The project is located on the hill above the Chuchle Racecourse boasting unobstructed views of Prague and the surrounding greenery.

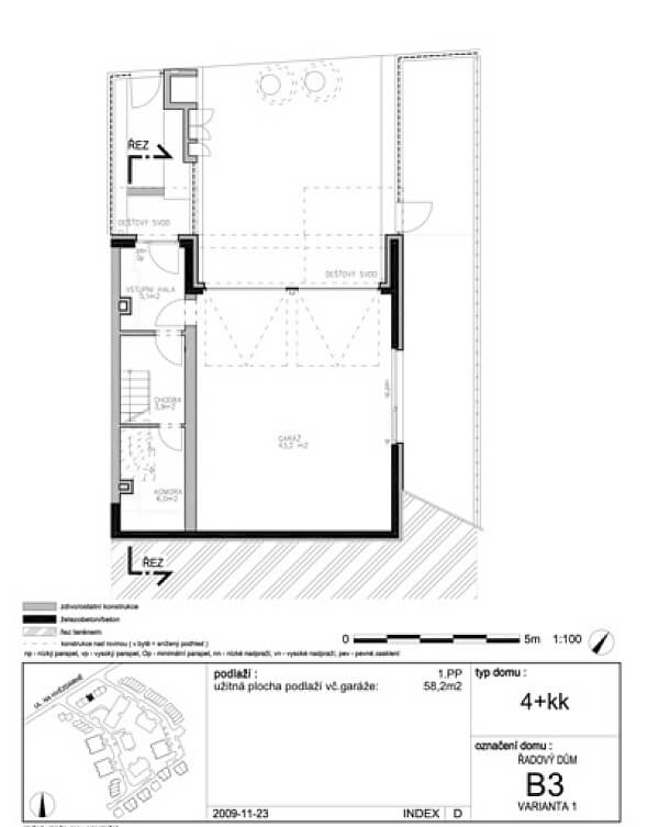
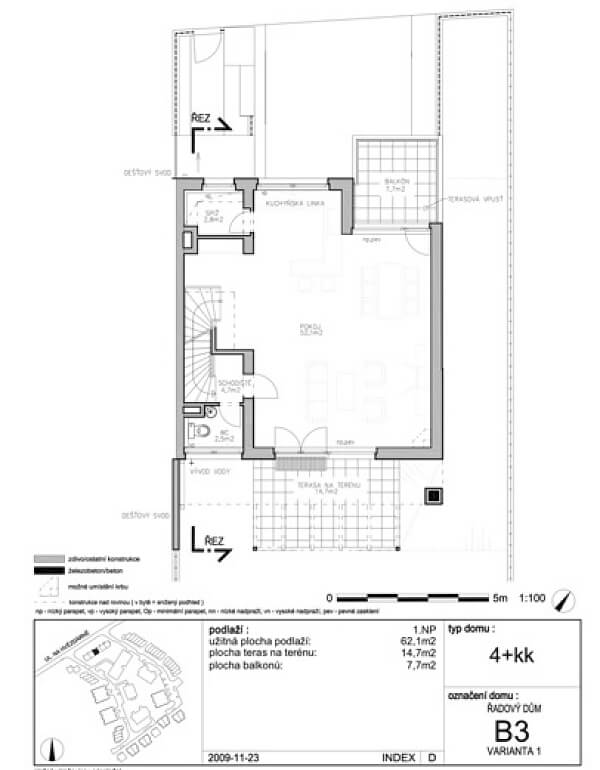
The main floor includes a spacious living room with a fully fitted open kitchen with pantry, balcony, terrace leading to the patio and back garden (173 m2), and a guest toilet with sink. The 1st floor features all three bedrooms, master bedroom with an en-suite shower bathroom (sink, toilet) and terrace, family bathroom (bath tub, double sink, bidet, toilet), and utility room. The entrance floor has double garage, entrance hall and walk-in closet.

Wood floors, large windows, built-in storage, blinds, audio entry phone, cable TV connection, satellite TV connection possible. Utilities are billed separately. Available from September, 2015.

Floor plan

  • Floor plan 1
  • Floor plan 2
  • Floor plan 3

Overview table

  • Reference number
    854
  • Monthly rent
    Rented
  • Floor area
    141 m²
  • Built-up area
    72 m²
  • Plot
    299 m²
  • Parking
    Garage for two large cars.
  • Cellar
    -
  • Building Energy Rating
    G

Location

Property surroundings

Contact us

optional
optional

See other houses in the area

Get the latest offers directly in your inbox

Location
Parameters
Size
Min
Max.
Price range
Price min.
Price max.
Price range
Price min.
Price max.