Information

Apartment, One-bedroom (2+kk)

This south-facing renovated apartment with 3.1m high ceilings is situated on the 3rd floor of a cozy apartment building located close to a revitalized area and where the modern Smíchov City district is being built, just a few steps from a park and a metro station.

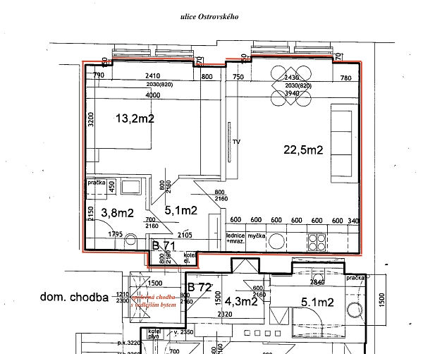
The apartment consists of a living room with a kitchen, a bedroom, a bathroom (with a shower, toilet, and connection for a washing machine), and a foyer.

The apartment was completely renovated in 2020. Floors are parquet in a tree pattern, and in the bathroom and hallway tiled in a marble design. The nicely shaped casement windows are new and can be shaded by fabric blinds. The kitchen has a wooden worktop and built-in appliances (induction hob, dishwasher, refrigerator), and the bedroom has a built-in wardrobe. Heating is provided by Bosch electric boiler, water heating by a boiler and underfloor heating in the bathroom. The historic building with a richly decorated facade and 11 residential units is currently without an elevator, but a study for its installation has been prepared.

The building is located in the wider city center near the Anděl metro station (Na Knížecí), and tram stops and a bus terminal are also nearby. There are many cafes, restaurants, the stylish Manifesto street food market, but also shops and medical services in the vicinity. It is a short distance to well-maintained parks, and the Na Skalce Garden and Mrázovka Park are right next door.

Floor area 44.6 m2, cellar 6 m2.

Possibility of taking over a mortgage loan with an interest rate of 1.99%, fixation until August 2025 and current balance amount of approx. 3,800,000 CZK.

Facilities

  • Cellar

Floor plan

  • Floor plan 1

Overview table

  • Reference number
    103823
  • Selling price
    Sold
  • Building services
    CZK 2 437 monthly
  • Floor area *
    44 m²
  • Total area
    44 m²
  • Ceiling height
    3,10 m
  • Parking
    -
  • Cellar
    Yes
  • Building Energy Rating
    G
* Size of the unit according to the Housing Act. The area consists of the sum total of the internal area of every room.

Location

Property surroundings

Contact us

optional
optional

Get the latest offers directly in your inbox

Location
Parameters
Size
Min
Max.
Price range
Price min.
Price max.
Price range
Price min.
Price max.