Information

Apartment, Two-bedroom (3+kk)

This modern, air-conditioned three-bedroom apartment with a balcony and garage parking space is located on the 2nd floor of an energy-efficient residential building with an elevator, built in 2013 as part of the revitalization of the Harfa district in Vysočany, Prague.

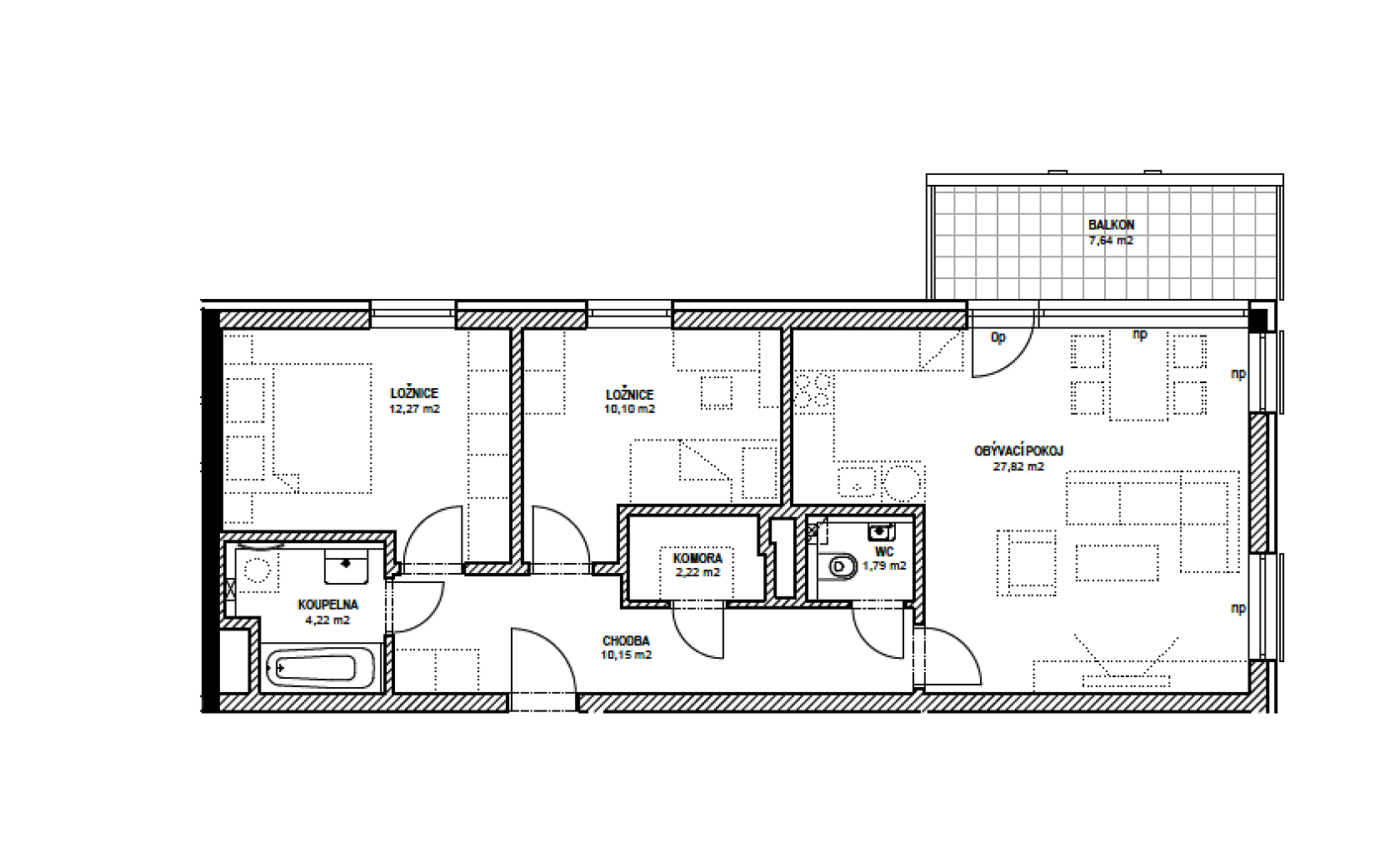
The apartment unit consists of a living room with a kitchenette and access to the balcony, two north-facing bedrooms, a bathroom with a bathtub and washing machine connection, a separate toilet, a storage room, and an entrance hall. The apartment includes one garage parking space.

The apartment features PVC windows, laminate floating floors, security entrance doors, a custom kitchen with built-in Zanussi and De Dietrich appliances, Laufen bathroom fixtures, and marble washbasins. Heating is provided via district heating, and the living room is equipped with air-conditioning. The apartment is offered fully furnished.

The location is ideal for family life, offering all the comforts of city living with excellent public transport and access by car, while still remaining close to nature. Within walking distance are schools, kindergartens, healthcare facilities, restaurants and cafés, a multipurpose arena, two large shopping centers, and a saltwater swimming pool. The surroundings also feature numerous playgrounds and sports facilities, including a rugby field, a bike path leading to the city center, and a hiking trail along the Rokytka Stream.

The property will be available for move-in from Q4/2026.

Floor area 67.6 m2, balcony 7.8 m2.

Facilities

  • Elevator
  • Air-conditioning
  • Parking
  • Balcony
  • Garage

Floor plan

  • Floor plan 1

Overview table

  • Reference number
    105616
  • Total price
    € 521 561 / CZK 12 700 000
  • Floor area *
    67 m²
  • Balcony
    7 m²
  • Total area
    75 m²
  • Ceiling height
    2,60 m
  • Parking
    1 garage parking space
  • Cellar
    -
  • Building Energy Rating
    B
* Size of the unit according to the Housing Act. The area consists of the sum total of the internal area of every room.

Location

Property surroundings

Contact us

optional
optional

Browse other apartments in the area

Get the latest offers directly in your inbox

Location
Parameters
Size
Min
Max.
Price range
Price min.
Price max.
Price range
Price min.
Price max.