Information

Apartment, Two-bedroom (3+kk)

This bright apartment with a balcony is part of a small apartment building located in the traditional residential district of Prague 10 - Strašnice with a complete infrastructure and plenty of greenery.

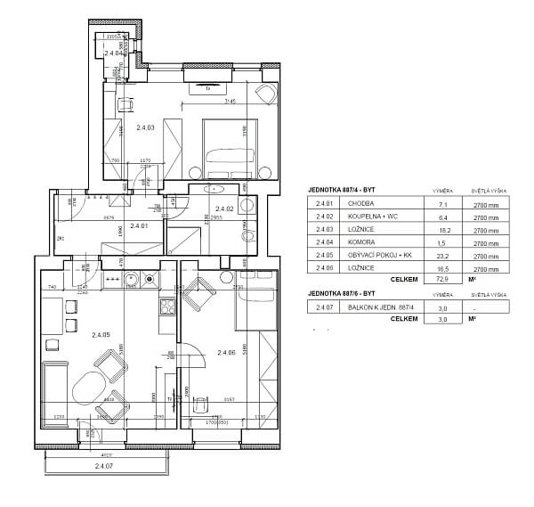
The layout of the 1st floor apartment consists of an entrance hall, a living room with a balcony and a preparation for a kitchen unit and access to a smaller bedroom, a larger bedroom facing a quiet courtyard, and a bathroom (shower, sink, toilet, washing machine connection).

The building and apartment are currently being renovated. Facilities include plastic windows with triple glazing, oiled oak floors, fire-resistant security entrance doors with noise insulation, interior doors,sink and toilet, cast marble bathtub of the same brand, and large-format floor and wall tiles. Heating throughout the apartment will be provided by a condensing gas boiler. The apartment comes with a cellar, and residents will have access to a shared garden. The brick building from the 1920s/1930s with 12 residential units has no elevator. The apartment includes 1 parking space on the property.

A convenient location on a side street near the Solidarita tram stop, about a 15-minute walk from the Strašnická metro station. There are restaurants, a post office, shops, and medical services in the area, and the district is made even more pleasant by the many green spaces in the gardens and landscaped parks.

Floor area 78.6 m2, balcony 3.2 m2, cellar 2.5 m2.

Completion expected in April 2025. Visualizations are for informational purposes only.

Facilities

  • Parking
  • Balcony
  • Cellar

Floor plan

  • Floor plan 1

Overview table

  • Reference number
    106804
  • Selling price
    Sold
  • Floor area *
    79 m²
  • Balcony
    3 m²
  • Total area
    81 m²
  • Parking
    1 parking space on the property
  • Cellar
    Yes
  • Building Energy Rating
    G
* Area of the unit according to the Civil Code. The area consists of the sum total area of the entire unit bounded by perimeter walls.

Contact us

optional
optional

Get the latest offers directly in your inbox

Location
Parameters
Size
Min
Max.
Price range
Price min.
Price max.
Price range
Price min.
Price max.