-
Apartment Studio (1+kk)
-
Prague 10, Strašnice
- Floor area
- 36 m²
- Balcony
- 1 m²
This studio apartment with a small balcony is part of a boutique apartment building located in a traditional residential district of Prague 10 - Strašnice with a complete infrastructure and plenty of greenery.
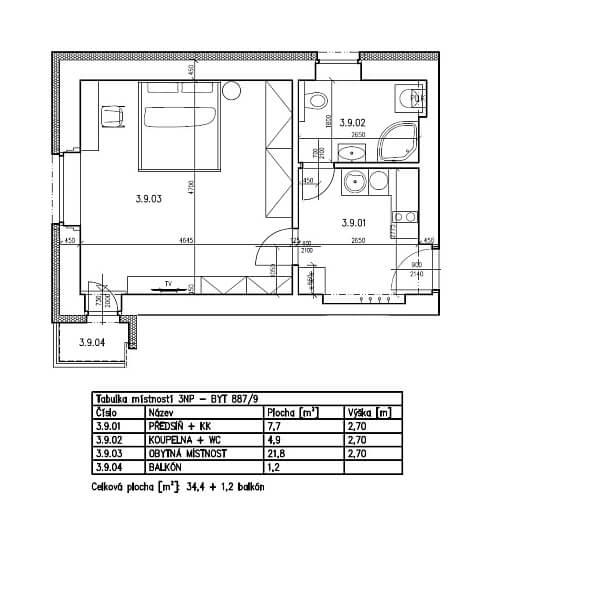
The layout of the 2nd floor apartment consists of an entrance hall with a preparation for a kitchen unit including a connection for a washing machine, a main room with a seating/sleeping area and access to a small balcony, and a bathroom (shower, sink, toilet).
The building and apartment are currently being renovated. Facilities include plastic windows with triple glazing, oiled oak floors, fire-resistant security entrance doors with noise insulation, interior doors, Villeroy & Boch sink and toilet, cast marble bathtub of the same brand, and large-format floor and wall tiles. Heating will be provided by an 1x 1500W INGENIUM oil radiator and hot water will be provided by a boiler. The apartment comes with a cellar and residents will have access to a shared garden. The brick building from the 1920s/1930s with 12 residential units has no elevator. Parking is possible in the blue zone in front of the building.
A convenient location on a side street near the Solidarita tram stop, about a 15-minute walk from the Strašnická metro station. There are restaurants, a post office, shops, and medical services in the area, and the district is made more pleasant by the many green spaces in the gardens and landscaped parks.
Floor area 35.56 m2, balcony 1.2 m2, cellar 2.5 m2.
Completion expected in April 2025. Visualizations are for informational purposes only.
Please contact us any time if you have any questions and our team will get back to you.