Information

Apartment, Two-bedroom (3+kk)

This well-equipped, air-conditioned apartment with a southeast-facing loggia is located on the 1st floor of a modern residential project with an underground garage, where two parking spaces are reserved for the unit. The four-story apartment building is situated in Prague 10 – Strašnice, close to a tram stop and a metro station.

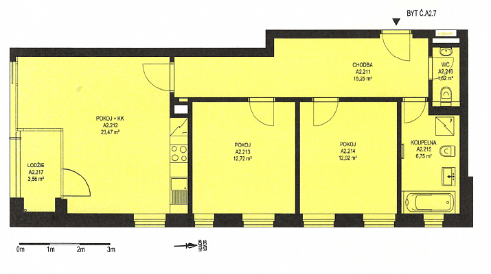
The apartment's practical layout includes a living room with an open plan kitchen and access to the loggia, two bedrooms, a bathroom (with a toilet, bathtub, and washer/dryer connection), a separate toilet, and an entrance hall with storage space.

The residence was completed in 2021. The large-format windows in the rooms are fitted with electrically operated exterior blinds, while the loggia windows have exterior shutters. The apartment features air-conditioning and recovery unit, floating laminate floors, custom-built designer furniture, and a stylish kitchen equipped with top-of-the-line Siemens appliances. The purchase price includes two garage parking spaces accessible by elevator. The building also offers a pram room. 

A private kindergarten operates just a few meters from the building, and the surrounding area is full of children's playgrounds. Nearby parks, Na Solidaritě and Gutovka, offer numerous sports facilities. Public transportation is easily accessible, with tram and bus stops about 400 meters from the building, and the Skalka and Depo Hostivař metro stations are within comfortable walking distance.

Floor area: 74.2 m2, loggia: 3.6 m2.

Facilities

  • Elevator
  • Air-conditioning
  • Parking
  • Loggia
  • Garage

Floor plan

  • Floor plan 1

Overview table

  • Reference number
    107645
  • Selling price
    Sold
  • Floor area *
    74 m²
  • Loggia
    3 m²
  • Total area
    77 m²
  • Parking
    2 parking spaces in the underground garage
  • Cellar
    -
  • Building Energy Rating
    B
* Size of the unit according to the Housing Act. The area consists of the sum total of the internal area of every room.

Location

Property surroundings

Contact us

optional
optional

Get the latest offers directly in your inbox

Location
Parameters
Size
Min
Max.
Price range
Price min.
Price max.
Price range
Price min.
Price max.