-
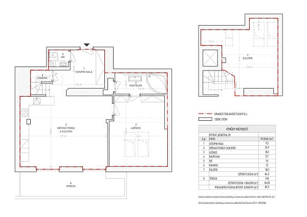
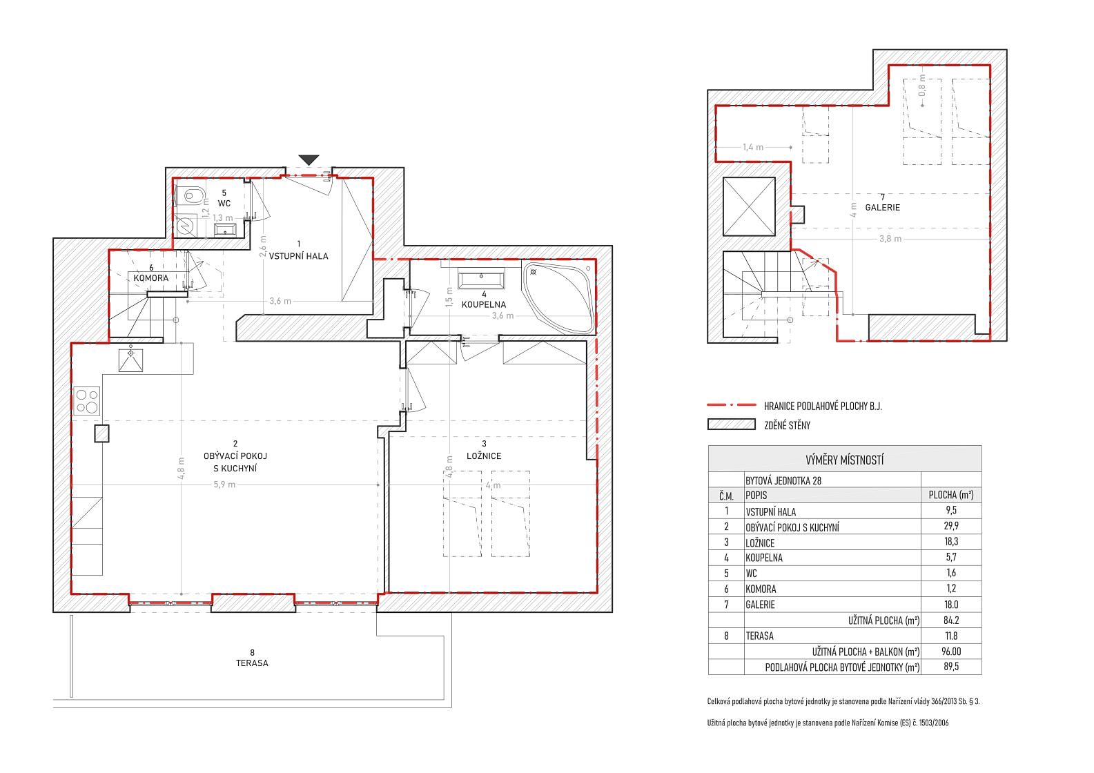
Apartment One-bedroom (2+1)
-
Prague 3, Žižkov, Čajkovského
- € 608 498
- Floor area
- 90 m²
- Terrace
- 11 m²


































