This airy apartment with high ceilings, a stylishly furnished and fresh interior, and efficiently used space is located on the 2nd floor of a classic brick residential building, situated near the Smíchov waterfront and the pedestrian zone of Anděl, within easy reach of complete amenities.
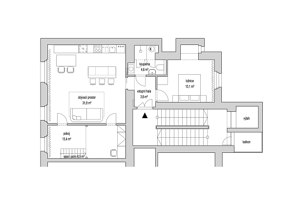
The practical layout includes a living room with a kitchen and dining area, a bedroom with a work corner, a second room (suitable as a children's room or study) with a sleeping loft, a bathroom (featuring a spacious walk-in shower, toilet with a bidet shower, and a sink), and an entrance hall. The bedroom window faces northeast toward the courtyard, while the living room and second room overlook a one-way street to the southwest.
The interior has been completely renovated, and the apartment is offered fully furnished with stylish designer pieces, including Slit coffee tables by Danish brand Hay, a Compo Beige sofa by Kavehome, Flamingo pendant lights from the Spanish studio Vibia, C2210 dining chairs by the Slovenian brand Arhitectura, and beds by Karup Design. The wooden casement windows feature acoustic insulation, and the floors are covered with renovated herringbone parquet. The lacquered, frameless interior doors are fitted with magnetic locks. The kitchen is fully equipped with built-in appliances by Bosch, Elica, and Whirlpool. Heating is provided by an electric boiler, and the rooms feature designer Korado Radik radiators. The building is equipped with an elevator stopping at mezzanine levels.
The excellent location in a quiet side street near the Anděl pedestrian zone puts everything you need within easy reach. The surrounding area is full of restaurants, cafés, bistros, and shops. Medical services and schools—including the French Lycée—are within walking distance. A Sokol sports center is just around the corner, and the popular Smíchov embankment is nearby. Convenient transport connections are ensured by the metro (line B) and numerous tram lines. Also nearby is Prague-Smíchov Railway Station and Na Knížecí bus terminal, which offers international connections as well.
Floor area 65.7 m2.
Please contact us any time if you have any questions and our team will get back to you.