Sale
-
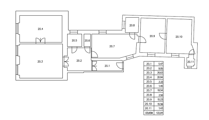
unit 393/20
-
Prague 8, Karlín, Křižíkova
Sold
- Floor area
- 122 m²






















