Sale
-
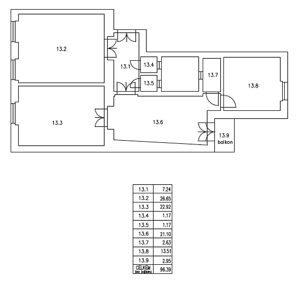
unit 393/13
-
Prague 8, Karlín, Křižíkova
Sold
- Floor area
- 96 m²
- Balcony
- 3 m²
















