Information

Apartment, Two-bedroom (3+kk)

Brand new apartment with terrace and balcony in a new building surrounded by greenery in the sought after area of Smíchov, Prague 5, a residential area with quick connection to the city center and easy access to the Prague Ring Road. Within walking distance of a tram stop and basic amenities, and close to the Skalka nature preserve and the Ladronka, Hvězda and Klamovka parks.

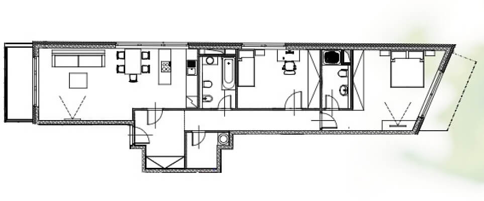
This 3rd floor apartment offers a living room with preparation for kitchen, 2 bedrooms, 2 bathrooms and a spacious entrance hall. Wooden floors, security doors, Hansgrohe, Villeroy & Boch and Catalano bathroom sanitary ware and fixtures. Garage parking space and cellar included in the purchase price. Interior 95.09 m2, 13.7 m2 terrace, 5.5 m2 balcony.

Facilities

  • Cellar
  • Garage

Floor plan

  • Floor plan 1

Overview table

  • Reference number
    16205
  • Selling price
    Sold
  • Floor area *
    96 m²
  • Terrace
    19 m²
  • Total area
    115 m²
  • Parking
    1 garage parking space
  • Cellar
    Yes
  • Building Energy Rating
    G
* Area of the unit according to the Civil Code. The area consists of the sum total area of the entire unit bounded by perimeter walls.

Location

Property surroundings

Contact us

optional
optional

Get the latest offers directly in your inbox

Location
Parameters
Size
Min
Max.
Price range
Price min.
Price max.
Price range
Price min.
Price max.