Information

Apartment, Three-bedroom (4+1)

Sunny south-oriented cooperative apartment on the 1st floor of a smaller reconstructed apartment building offering absolute tranquility, situated in the sought-after residential area of Hřebenky. The house is surrounded by a garden. Suitable for families with children.

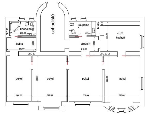
All bedrooms are south-facing. The layout features an entry hall with access to the kitchen, living room and bathroom; the master bedroom and 2 other bedrooms (one w/ walk-in closet and bathroom) are accessible from the living room. The co-op apartment was completely reconstructed in 2003 and is now complete with distribution of audio/video and Internet, two bathrooms and spacious wardrobes. Convenient parking in front of the house, which is situated at the end of a dead end street.

The popular location of Hřebenky offers quiet living in a green area - Klamovka Park within walking distance. Easy access to the center with the Anděl shopping and entertainment center being only 10 minutes away.

Interior 101.76 m2.

Facilities

  • Cellar

Floor plan

  • Floor plan 1

Overview table

  • Reference number
    18157
  • Selling price
    Sold
  • Floor area *
    102 m²
  • Total area
    102 m²
  • Parking
    -
  • Cellar
    Yes
  • Building Energy Rating
    G
* Area of the unit according to the Civil Code. The area consists of the sum total area of the entire unit bounded by perimeter walls.

Location

Property surroundings

Contact us

optional
optional

Get the latest offers directly in your inbox

Location
Parameters
Size
Min
Max.
Price range
Price min.
Price max.
Price range
Price min.
Price max.