Information

Apartment, One-bedroom (2+kk)

Partially furnished apartment with loggia and stunning views of the city on the 2nd floor of a residential building from 2007 with a lift, in an attractive location near the popular Dívčí hrady forest, with good transport connections to the metro and Smíchovské nádraží railway.

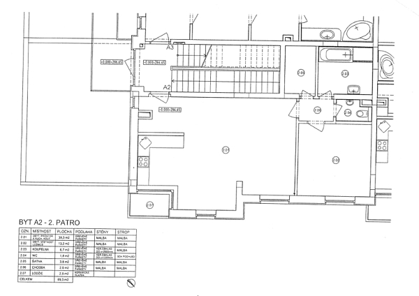
The layout consists of a bright open-plan living room with kitchenette, dining area and access to the loggia, 1 bedroom, bathroom with bathtub and shower, separate toilet, and hall.
The apartment is equipped to a high standard with oak wood flooring in the main rooms, Merbau wood floors and Venetian stucco in the bathroom and toilet, large-format double-glazed wooden windows, Baumatic kitchen appliances and Liebherr refrigerator, security entrance door, built-in wardrobes.

Attractive location close to large green areas, only 10 minutes drive downtown or 5 minutes to Nový Smíchov shopping center with cinema, restaurants, etc.

Interior 66.8 m2, loggia 2.5 m2.

Floor plan

  • Floor plan 1

Overview table

  • Reference number
    19833
  • Selling price
    Sold
  • Building services
    CZK 4 500 monthly
  • Floor area *
    66 m²
  • Loggia
    3 m²
  • Total area
    69 m²
  • Parking
    -
  • Cellar
    -
  • Building Energy Rating
    G
* Area of the unit according to the Civil Code. The area consists of the sum total area of the entire unit bounded by perimeter walls.

Location

Property surroundings

Contact us

optional
optional

Get the latest offers directly in your inbox

Location
Parameters
Size
Min
Max.
Price range
Price min.
Price max.
Price range
Price min.
Price max.