-
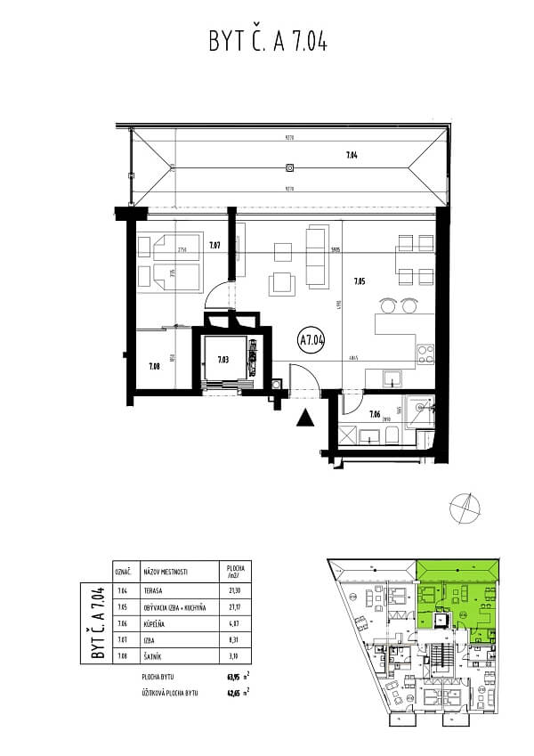
1- bedroom unit A7.04/ seventh floor
-
Bratislava I, Staré Mesto
- Floor area
- 43 m²
- Terrace
- 21 m²
This bright, air-conditioned rooftop one-bedroom apartment with a spacious terrace with views of Bratislava Castle will be part of the newly emerging New Residence with underground parking, a green roof on the ceiling of the underground floor between the buildings, and a wide atrium full of greenery. Built and designed with high quality materials and boasting modern technologies, it will offer residents the best of comfortable urban living in a pleasant residential part of Old Town, with a rich selection of services and close to the green spaces of the Medical or Presidential Garden. Expected final approval date 06/2021.
The interior will consist of an entrance hall, a living room connected to the kitchen and dining area, a bedroom with a walk-in closet, and a bathroom with a shower and toilet. The terrace is accessible from both rooms.
Standard equipment will include laminate floors, quality wall tiles, floor tiles, interior doors, Ideal Standard sanitary ware, and plastic windows and doors with insulated triple-glazed panes. Underfloor heating from the central boiler room located in the building as well as a heated towel rail in the bathroom are planned. The apartment will be air-conditioned by a separate unit. Chip-entry aluminum entrance door. It will be possible to buy a parking space in the garage for EUR 25,000 (incl. VAT).
An attractive Old Town location close to Obchodna Street, the Medical Garden, and the Presidential Palace. All necessary services and institutions are nearby: schools from nursery schools to universities, health centers, and theaters and museums. Great shopping opportunities are also within walking distance, from small bakeries and farmers' markets to supermarkets. The location is very popular due to its rich infrastructure, wide range of sports opportunities, and fast accessibility by car and public transport.
Interior 43 m2, terrace 21 m2.
Apartment price, basic fit-out: EUR 240,000 (incl. VAT).
Apartment price, standard fit-out: EUR 245,000 (incl. VAT).
Please contact us any time if you have any questions and our team will get back to you.