-
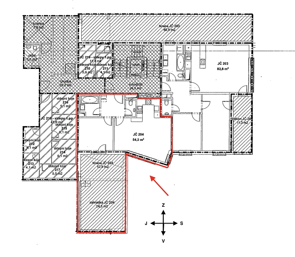
Apartment One-bedroom (2+kk)
-
Prague 5, Hlubočepy, Pražského
- Floor area
- 53 m²
- Terrace
- 12 m²
- Garden
- 24 m²


























