Information

Apartment, Two-bedroom (3+kk)

This spacious airy apartment with a balcony and a garage parking space is part of one of the first premium residential projects in Prague: Areál Hvězda. This complex of buildings surrounded by greenery was created in 1997 according to the designs of Vlado Milunić, the author of the Dancing House. A perfect location with a complete range of services and excellent transport accessibility.

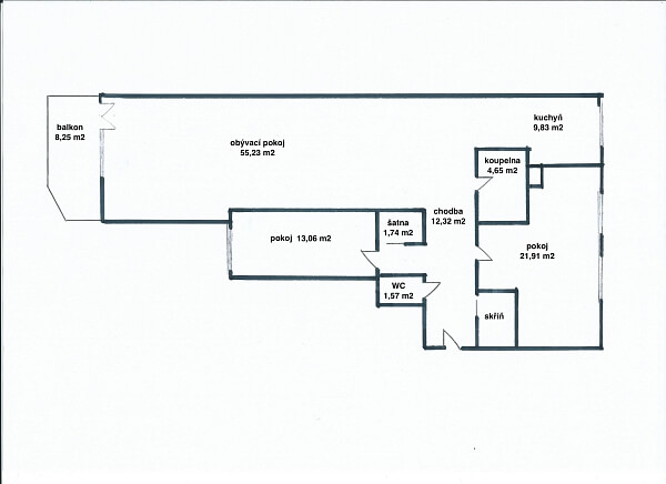
The area of ​​the apartment on the 1st floor is divided into a more than 50-meter living room with an adjoining bright kitchen and sunny balcony overlooking the greenery, 2 bedrooms (east-facing and west-facing), a bathroom, a separate toilet, a dressing room, and an entrance hall.

Facilities include floating wooden floors, and wooden Euro windows with double glazing and electrically operated exterior blinds. Central heating. The purchase price includes a garage parking space. The residence has a reception, 24-hour security, and a caretaker.

An ideal location right next to a metro station and tram stop, near Hvězda Park, Libocký Pond, and close to Ladronka Park. In the immediate vicinity, there are shops including a farm shop or supermarket, a kindergarten and 2 elementary schools as well as a high school, cafes, and restaurants. Medical services are also within easy reach. The ride to the city center takes only a few minutes, and the nearby Prague Ring Road speeds up traveling by car. The drive to the airport is also fast.

Interior 108.65 m2, balcony 8.25 m2.

In addition to regular property viewings, we also offer real-time video viewings via WhatsApp, FaceTime, Messenger, Skype, and other apps.

Facilities

  • Garage

Floor plan

  • Floor plan 1

Overview table

  • Reference number
    42285
  • Selling price
    Sold
  • Building services
    CZK 6 450 monthly
  • Floor area *
    109 m²
  • Balcony
    9 m²
  • Total area
    118 m²
  • Parking
    Garage parking space no. 186
  • Cellar
    -
  • Building Energy Rating
    G
* Area of the unit according to the Civil Code. The area consists of the sum total area of the entire unit bounded by perimeter walls.

Location

Property surroundings

Contact us

optional
optional

Get the latest offers directly in your inbox

Location
Parameters
Size
Min
Max.
Price range
Price min.
Price max.
Price range
Price min.
Price max.