Information

House, Four-bedroom (5+kk)

This recently approved sunny family house with quality equipment, air-conditioning, a bioclimatic pergola, a garage, and a grassy flat garden stands on a corner lot on a quiet dead-end street in the village of Nový Vestec. This new villa development is located right next to the forest park near Stará Boleslav, a few minutes' drive from Černý Most.

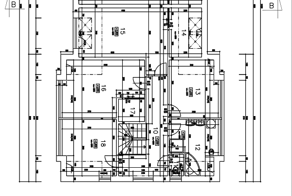
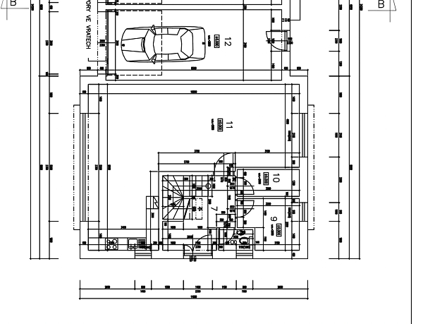
The ground floor is dominated by a more than 50-meter living space connected by a glass wall with a southwest-facing terrace. There is also a dressing room, a storage room, a toilet, a utility room, and a foyer. The quiet zone on the first floor consists of 4 bedrooms, a spacious bathroom (with a bathtub, shower, toilet, and double sink), a separate toilet, and 2 dressing rooms.

The brick house (separate half of a semi-detached house) was approved in December 2022. The high-quality equipment includes large-format windows with triple glazing and exterior electric blinds with the possibility of central closing, glued wooden floors, air-conditioning throughout the house, a central vacuum cleaner, a security device, rebated doors, and floor heating connected to a heat pump. The surface of the terrace is made of exotic Garapa wood; an electrically controlled bioclimatic pergola provides shading. Parking is provided in the garage with access to the garden. The flat garden, which is easy to maintain due to its size and plant composition, is maintained by automatic irrigation.

The place provides quiet living within quick reach of all civic amenities, which is accessible by car or bus from a nearby stop. Prague's Černý Most, with its shopping area and metro station, is just a few minutes' drive away on the D10 highway. The beautiful landscape of Polabí surrounds the village; nearby is the swimming lake at Káraného, the Toušeň bog spa, the Houšťka forest park with sports facilities or the Black Eagle natural monument, part of the former royal forests. The landscape can be explored on cycle routes and hiking trails, and the Blaník-Říp pilgrimage route also leads here.

Usable area 210 m2, built-up area 129 m2, garden 300 m2, plot 429 m2.

Facilities

  • Garage

Floor plan

  • Floor plan 1
  • Floor plan 2

Overview table

  • Reference number
    101657
  • Selling price
    Sold
  • Floor area
    210 m²
  • Garage
    Yes
  • Total area
    209 m²
  • Plot
    429 m²
  • Parking
    Garage
  • Cellar
    -
  • Building Energy Rating
    C

Location

Property surroundings

Contact us

optional
optional

Get the latest offers directly in your inbox

Location
Parameters
Size
Min
Max.
Price range
Price min.
Price max.
Price range
Price min.
Price max.