-
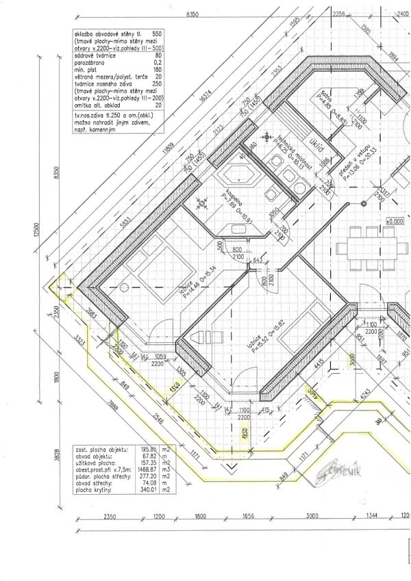
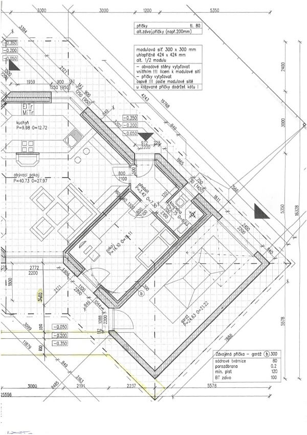
House Three-bedroom (4+kk)
-
Rakovník, Nové Strašecí, Fibichova
- Total area
- 160 m²
- Plot
- 1 128 m²
- Garden
- 981 m²































