Information

House, Four-bedroom (5+kk)

Modern semi-detached family house with garage in a new residential project located in Březiněves, Prague 8, 15 minutes from the city center and close to shopping and entertainment areas in Letňany and Ďáblice.

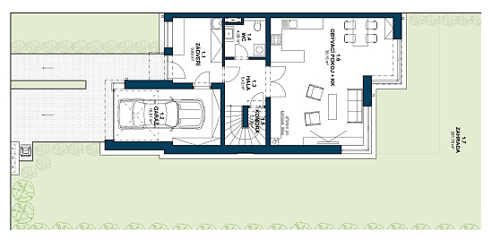
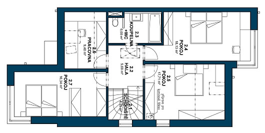
The layout of the ground floor consists of a living room with kitchen and dining room with direct access to the terrace, utility room, guest toilet and entrance hall with space for built-in wardrobes. The first floor is situated as a quiet zone with 3 bedrooms, study and bathroom. Building energy rating "B". Completion of the project is planned for summer 2014. Interior 180.6 m2, land 392m2.

Březivněves offers excellent transport links to the city center and basic amenities of a modern community (kindergartens, shops, swimming pool, sports center), plus beautiful nature nearby. Public transport bus stop is 400 meters away, while the metro is within walking distance, approx. 15 minutes.

For further information about the project and a full list of houses, please visit the "South hillside" website.

Facilities

  • Garage

Overview table

  • Reference number
    16466
  • Selling price
    Sold
  • Floor area
    181 m²
  • Garage
    Yes
  • Built-up area
    100 m²
  • Plot
    392 m²
  • Parking
    Yes
  • Cellar
    -
  • Building Energy Rating
    G

Location

Property surroundings

Contact us

optional
optional

Get the latest offers directly in your inbox

Location
Parameters
Size
Min
Max.
Price range
Price min.
Price max.
Price range
Price min.
Price max.