-
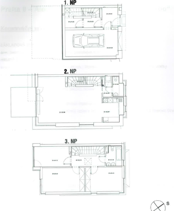
House Three-bedroom (4+kk)
-
Prague 9, Hloubětín, Cedrová
- Total area
- 172 m²
- Plot
- 253 m²
- Terrace
- 15 m²






















