Information

Four-bedroom House (5 + kk), C03

Exceptional house with low operating costs set among greenery, yet at the same time within walking distance of all services. This house will be part of a newly emerging development project of 20 houses excelling in architectural design with emphasis on connecting the house to the outdoor space of the garden, and to the practical layout of the interior. The house is located on a corner plot, surrounded by a park on both sides.

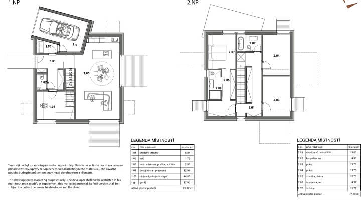
The interior of the house consists of an entrance hall with access to a walk-in closet, toilet, study / guest room and a technical room followed by a garage. There is a generous living room with a space for a kitchen and a dining area. Dining and living space open to the garden thanks to large French windows. The upper floor is divided into a "children" and "parent" zone: there are two separate rooms with a shared walk-in closet and a bathroom with a bathtub and toilet. The parent zone includes a master bedroom, walk-in closet and an en-suite bathroom with a shower and a separate toilet. All rooms have access to balconies.

The house has a wooden exterior structure which forms a semi-enclosed space on the upper floor balconies and the partially covered ground floor, which ensures privacy without blocking views. The structure can be covered with vegetation to create semi-private atriums in individual balconies. The whole project presents a uniform impression.

Standard equipment includes floating wooden floors in living rooms and ceramic tiles in bathrooms, toilets, entrance hall and technological rooms. On the terrace there are Siberian larch planks. EURO windows are wooden with all-round fitting and insulating triple glazing, EURO entrance doors and painted interior doors. Heating provided by an air / water heat pump with an indoor unit with a built-in electric boiler and a stainless DHW cylinder; heating with equithermal control (the temperature of the water changes automatically depending on the outside temperature). It is possible to manually regulate the underfloor heating in all individual rooms. TV distribution in all rooms, home video phone, TV antenna and data distribution.

The project is located in a quiet location on the edge of a forest, but at the same time it is within walking distance of a complete urban infrastructure with cultural and sports facilities. Nature trail, ponds, hiking trails, cycling tracks, nature park – all this and more in the immediate vicinity. The town, dominated by a Rococo chateau offers several kindergartens, two elementary schools, shops, a health center and a post office. The location is also convenient thanks to easy access to the D4 hallway and a bus connection to Prague, which takes about 30 minutes.

Interior 166 m2, land 992 m2.

Facilities

  • Garage

Floor plan

  • Floor plan 1

Overview table

  • Reference number
    26743
  • Selling price
    Sold
  • Floor area
    166 m²
  • Built-up area
    160 m²
  • Plot
    992 m²
  • Parking
    Garage
  • Cellar
    -
  • Building Energy Rating
    A

Contact us

optional
optional

Get the latest offers directly in your inbox

Location
Parameters
Size
Min
Max.
Price range
Price min.
Price max.
Price range
Price min.
Price max.