-
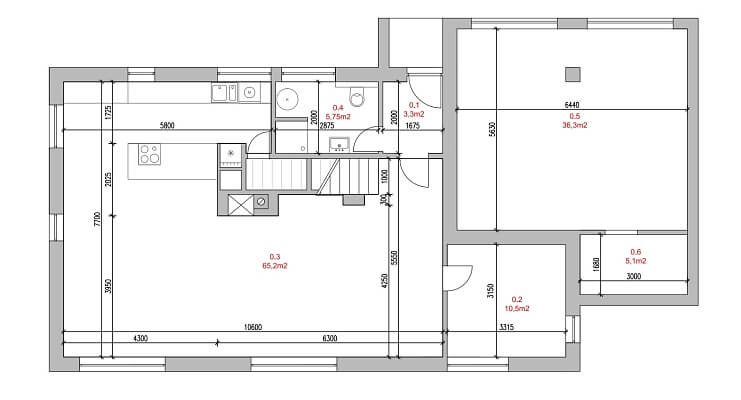
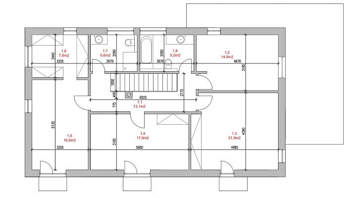
House Five-bedroom (6+kk)
-
Praha-východ, Herink, Za Zahradama
- Total area
- 190 m²
- Plot
- 1 027 m²
- Garden
- 870 m²





























