-
Four-bedroom House (5 + kk), B03
-
Praha-západ, Dobříš
- Total area
- 172 m²
- Plot
- 606 m²
This exceptional house with low operating costs is set amongst greenery, yet at the same time within walking distance of all services. The house will be part of a newly emerging residential project consisting of 20 houses with an exceptional architectural design that emphasizes the home's connection to the outdoor space of the garden and a practical interior layout.
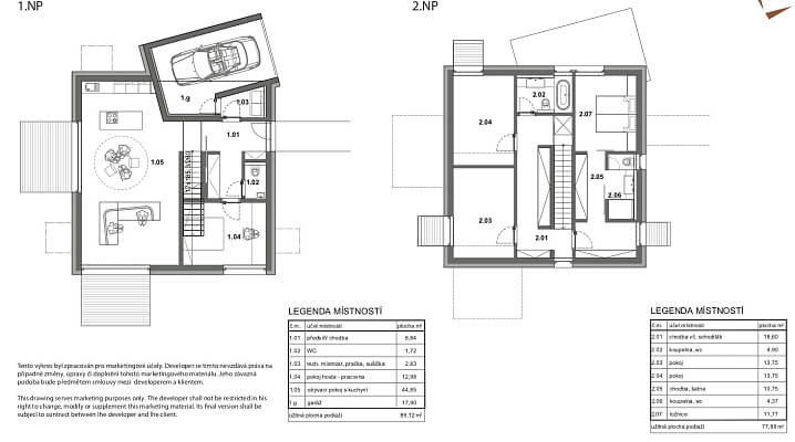
The interior of the house consists of an entrance hall with access to a walk-in closet, a toilet, and a study/guest room, and a utility room with direct access to the garage. There is a living room with space for a kitchen and a dining area. The dining and living space is open to the garden thanks to large French windows. The upper floor is divided into a "children's" and a "parents" zone: two separate rooms with a shared bathroom with a bathtub and a toilet are located in the children's area, and the parents area has a master bedroom, a separate dressing room, and a private bathroom with a shower and a guest toilet. All rooms have access to attached balconies.
The facilities include oak multi-layer wooden floors in the living areas, and large-format ceramic tiles in the bathrooms, toilets, entrance hall, and utility room. The terrace has Siberian larch planks with spectacular steel nets on the sides. Wooden EURO windows with metal frames and insulated triple-glazed panes, EURO entrance doors, and painted interior doors. Heating is provided by an air/water heat pump with an indoor unit with a built-in electric boiler and a stainless DHW cylinder; the heating has equithermal control (the temperature of the water changes automatically depending on the outside temperature). It is possible to manually regulate the underfloor heating in all individual rooms. TV distribution in all rooms, home video phone, TV antenna, and data distribution. The house has a garage for one car, and it is possible to park behind the gate in front of the house as well as on the parking spaces on the other side of the fence.
The project is located in a quiet area on the edge of a forest, but at the same time within walking distance of complete urban infrastructure with cultural and sports facilities. A nature trail, ponds, hiking trails, bike paths, a nature park – all of this and more is in the immediate vicinity. The town, dominated by a Rococo chateau, has several kindergartens, two elementary schools, shops, a health center, and a post office. The location is also convenient thanks to its easy access to the D4 highway and bus connections to Prague. The city can be reached within 30 minutes.
Interior 167 m2, balcony 5 m2, plot 712 m2, built-up area 113.42 m2.
Please contact us any time if you have any questions and our team will get back to you.