Information

House, Three-bedroom (4+kk)

This newly built low energy bungalow with a south-facing terrace is located in a small village in the beautiful countryside near the Moravian Karst. The center of Brno is half an hour away by car. Currently the construction is finishing with possibility to move in September 2019.

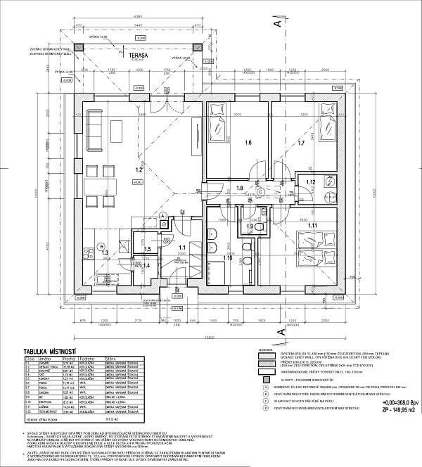
The layout will consist of a living room with a kitchen and garden terrace, a north-facing master bedroom, two bedrooms with south-facing windows, a bathroom, separate toilet, entrance hall, pantry, storage room, and utility room.

The house is made of Izolox particle board with perfect thermal and sound insulation. Features will include plastic windows with triple glazing, external shutters on the south facade, plastic security entrance doors, interior doors, heated floors (vinyl in the living rooms, large format tiles in the bathroom) and a fireplace stove. An electric boiler provides hot water. A rainwater tank uses greywater for flushing toilets, which will help conserve drinking water. There are two parking spaces outside. The garden has a fence.

The calm location near the Moravian Karst offers fresh air, proximity to nature as well as to the city and basic services: there are grocery stores, a kindergarten and elementary school, post office, general practitioner and pediatrician, a pharmacy. Other services are located in Blansko (10-minute drive), Brno is about 15 minutes away by car. In the village, surrounded by dense forests with hiking and bike paths, there is a sports park with football, tennis, and beach volleyball courts, a café with a pizzeria, a cake shop, a popular tourist restaurant, and a wellness studio with a whirlpool, sauna, steam, and massage services.

Interior 112 m2, terrace 20 m2, built-up area 152 m2, garden 385 m2, land 537 m2.

Floor plan

  • Floor plan 1
  • Floor plan 2

Overview table

  • Reference number
    29912
  • Selling price
    Sold
  • Floor area
    112 m²
  • Terrace
    20 m²
  • Total area
    132 m²
  • Built-up area
    150 m²
  • Garden
    385 m²
  • Plot
    537 m²
  • Parking
    2 parkovací stání u domu
  • Cellar
    -
  • Building Energy Rating
    B

Location

Property surroundings

Contact us

optional
optional

Get the latest offers directly in your inbox

Location
Parameters
Size
Min
Max.
Price range
Price min.
Price max.
Price range
Price min.
Price max.