Information

Land

This plot of land with a newly completed structural shell of a brick family house, suitable for both recreational and permanent living, is located in a perfectly quiet and green area in the village of Kytín, within the Hřebeny Nature Park, on the outskirts of Mníšek pod Brdy, just 20 km from the edge of Prague.

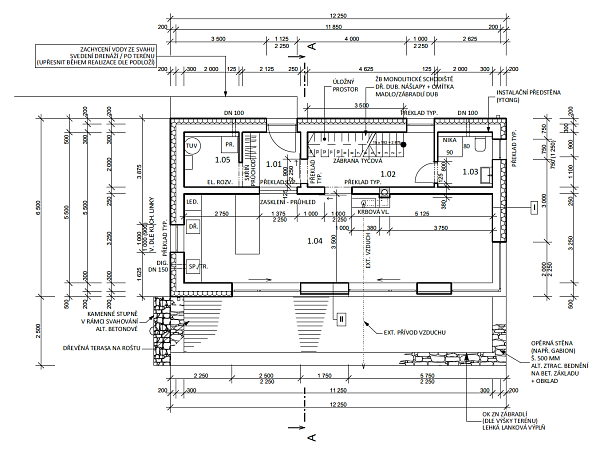
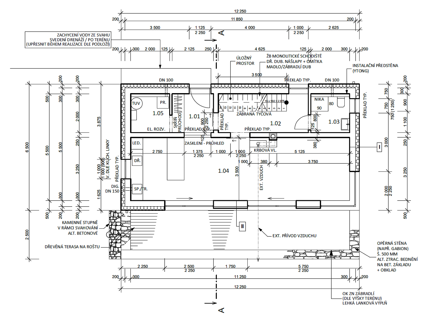
When designing the house, great emphasis was placed on a practical layout and ample storage space. The ground floor features a southeast-facing living room with space for a kitchen and dining area, a bathroom with a toilet, a utility room, an entrance hall, and a staircase hall. Under the stairs, space is allocated for a large built-in wardrobe. The upper floor comprises 3 bedrooms, a bathroom, and a walk-in closet that can also serve as a study.

The house is built of Ytong bricks, with a stacked ceramic roof in black by Tondach. Large-format windows with gray PVC frames ensure plenty of natural light and attractive views of the surroundings. The plot is connected to electricity, drinking water comes from a drilled well, and wastewater will be managed via a septic tank or a domestic treatment plant. The proposed heating system is an electric boiler (or alternatively a heat pump), and the house also has preparation for a fireplace stove. The property is sold in the current shell stage. According to the project, 2 parking spaces are planned on the plot, where a garden house and a greenhouse are already situated.

The corner plot provides welcome privacy and tranquility, with nearby hiking and bike trails passing through the Hřebeny Nature Park forest. The nearest amenities are available in the village of Kytín and the town of Mníšek pod Brdy, where everything necessary is accessible. From Kytín, it is possible to reach the Smíchovské nádraží metro station by suburban bus, and car travel is convenient thanks to the nearby D4 highway access.

Total area of the house 112.06 m², built-up area 79.6 m², garden 642.4 m², plot 722 m².

Floor plan

  • Floor plan 1
  • Floor plan 2

Overview table

  • Reference number
    112190
  • Total price
    € 370 875 / CZK 8 990 000
  • Price per m²
    € 513.70 / CZK 12 452
  • Total area
    722 m²
  • Type of land
    Housing

Location

Property surroundings

Contact us

optional
optional

See other lands in the area

Get the latest offers directly in your inbox

Location
Parameters
Size
Min
Max.
Price range
Price min.
Price max.
Price range
Price min.
Price max.